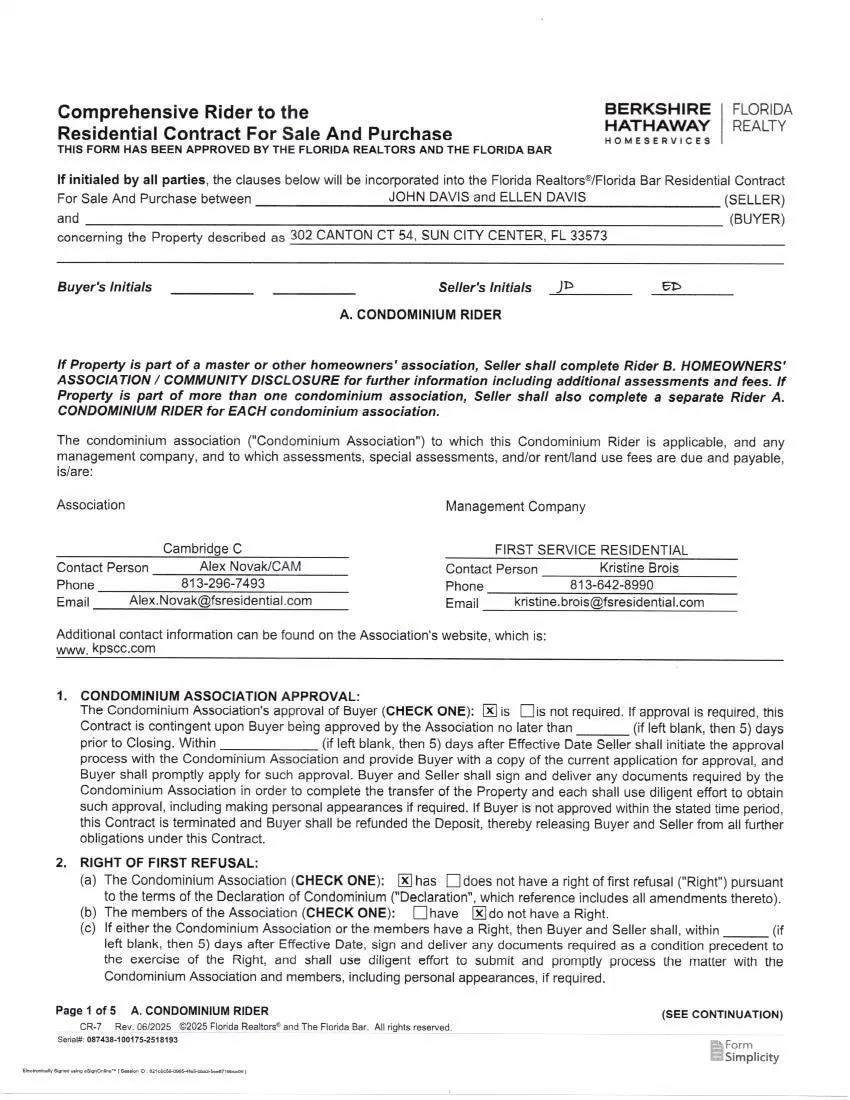
302 Canton Court 54, SUN CITY CENTER, FL

$102,900

Previous Next

1

Bed

2

Baths

800

Square feet

0.02

Acres

About 302 Canton Court 54

NICE PRICE ADJUSTMENT! This cozy cottage can be found the in the Canton area and is just perfect for a winter get away or full-time living. Condo is FURNISHED, so you can move right in. The unit has been opened up between the Kitchen and Living room to create an open, airy and inviting space. The replaced windows add brightness and sparkle. The popcorn ceilings have been removed. Appliances and Kitchen cabinets have been updated, NEW 2025 AIR CONDITIONER, updated electric panel, CPVC Plumbing. There is a private Lanai off the primary suite with the laundry closet at one end. The gated community of Kings Point has amazing facilities, pools and clubs just waiting for you to enjoy. Kings Point is a resort-style active retirement community with two beautiful clubhouses, 6 heated pools, an 850-seat theater, an elegant spa, tennis courts, golf course, 2 hot tubs, billiards, several pickleball courts, two state-of-the-art fitness centers and much more. Dozens of social and sports clubs will keep you entertained year-round. This maintenance-free community allows access to doctors, hospitals, shopping, banking, restaurants, and virtually everything you will ever need via a golf cart. Kings Point even offers a free transportation system. Centrally located minutes from an assortment of spectacular beaches, world class fishing, Tampa's convenient cruise port, and Disney World, Kings Point is an award-winning community and one of Florida's best places to live! Don't let this one slip away. North of Sarasota and just south of Tampa, it is the perfect location for a convenient ride to airports, world class shopping, dining, professional sports and entertainment, shows and concerts. With easy access to award-winning, white sand beaches, this is the best of all worlds, but without the stress of traffic and big city life. Leave it all behind and enjoy your new life here in one of the country’s highest rated 55+ communities!

Features of 302 Canton Court 54

MLS® # TB8406912
Price $102,900
Bedrooms 1
Bathrooms 2.00
Full Baths 1
Half Baths 1
Square Footage 800
Acres 0.02
Year Built 1974
Type Residential
Sub-Type Condominium
Status Active

Community Information

Address 302 Canton Court 54
Area Sun City Center / Ruskin
Subdivision CAMBRIDGE C CONDO
City SUN CITY CENTER
County Hillsborough
State FL
Zip Code 33573-5625

Amenities

Parking Covered
Is Waterfront No
Has Pool No

Interior

Interior Features Ceiling Fan(s), L Dining, Open Floorplan, Thermostat
Appliances Dishwasher, Disposal, Dryer, Range, Range Hood, Refrigerator, Washer
Heating Central, Electric, Heat Pump
Cooling Central Air
Fireplace No
# of Stories 1

Exterior

Exterior Features Irrigation System, Lighting, Rain Gutters
Lot Description In County, Landscaped
Roof Shingle
Foundation Slab

Additional Information

Date Listed July 17th, 2025
Days on Market 78
Zoning PD
Foreclosure No
Short Sale No
RE / Bank Owned No

Listing Details

OfficeBHHS FLORIDA REALTY

Listing Map

Request a Showing

Provide a valid email address.
When would you like to view this property?